Loading...
Home  |  Projects  |  Paniotis Treehouse Villa

PROJECTS

PANIOTIS TREEHOUSE VILLA

Paniotis Treehouse Villa is a 5-bedroom premium-class villa in the most prestigious location in Limassol. This luxurious villa represents the epitome of elegance and sophistication. Situated in a prime location in Limassol, it offers the perfect balance of tranquility and accessibility to all the amenities the city has to offer.

Prime Location: Enjoy urban convenience with easy access to restaurants, shopping, beaches, and cultural attractions, all in a serene setting. 

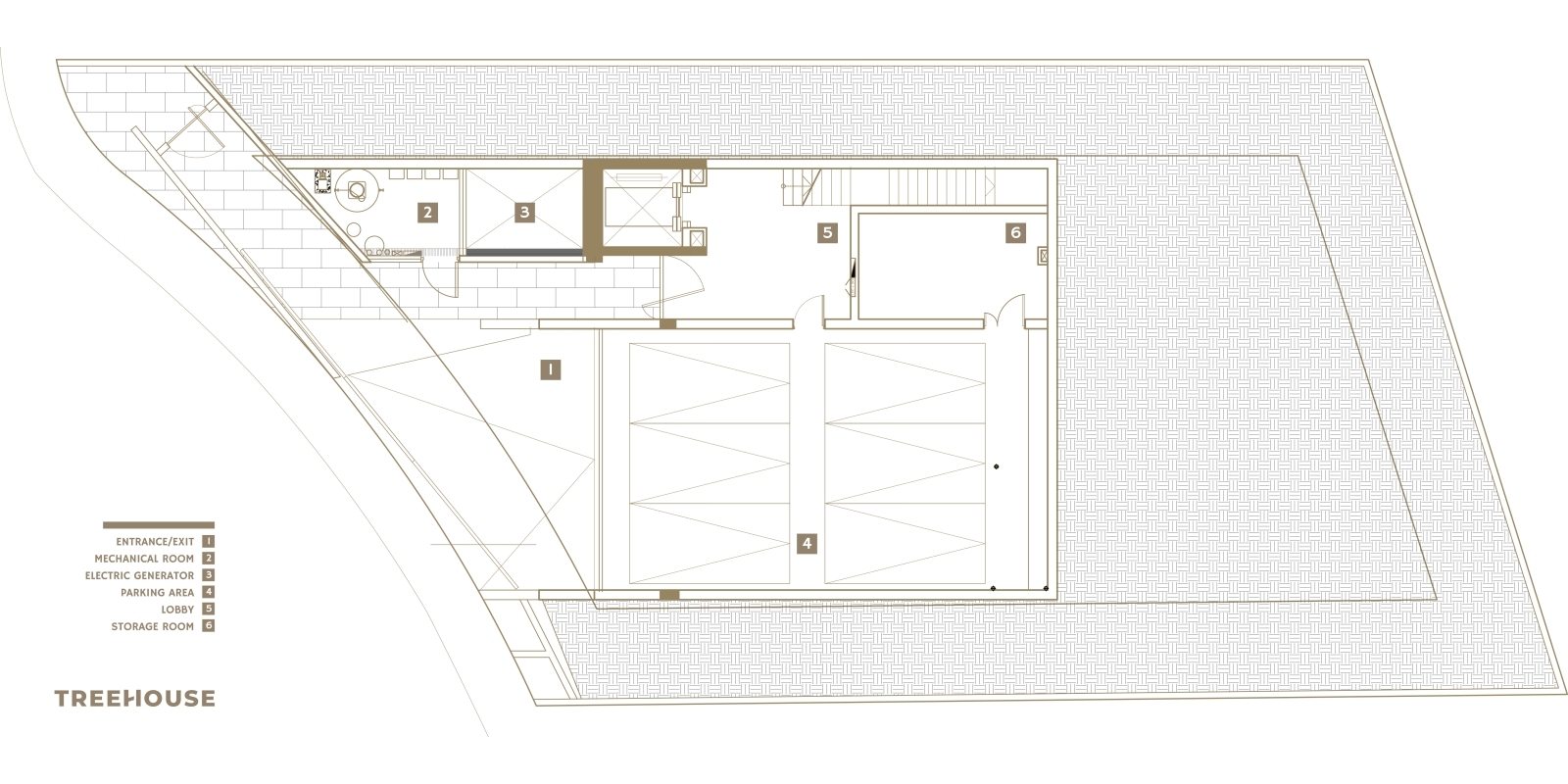
Spacious Living: 5 bedrooms, 1 office, high ceilings, natural light, lift access, 6 parking spaces, and a large storage area.

Spectacular Views: Stunning sea and mountain views from every corner.

Elegant Design: Crafted by Armeftis Architects, blending luxury with refinement. 

Outdoor Paradise: Landscaped gardens, a spacious terrace, and a swimming pool for ultimate relaxation.

Total Covered Area: 1043m2.
Total Internal Covered Area: 887m2
Plot Area: 721m2
Project: Paniotis Treehouse Villa
Category: Villas
Location: Paniotis Germasogeia
Status: For Sale
Delivery: Off-Plan
GET IN TOUCH DOWNLOAD BROCHURE

PHOTOS

PLANS

LOCATION

PRICES AND AVAILABILITY REQUEST